Add Annotations for CAD Drawings

Create an Annotation Layer Easily

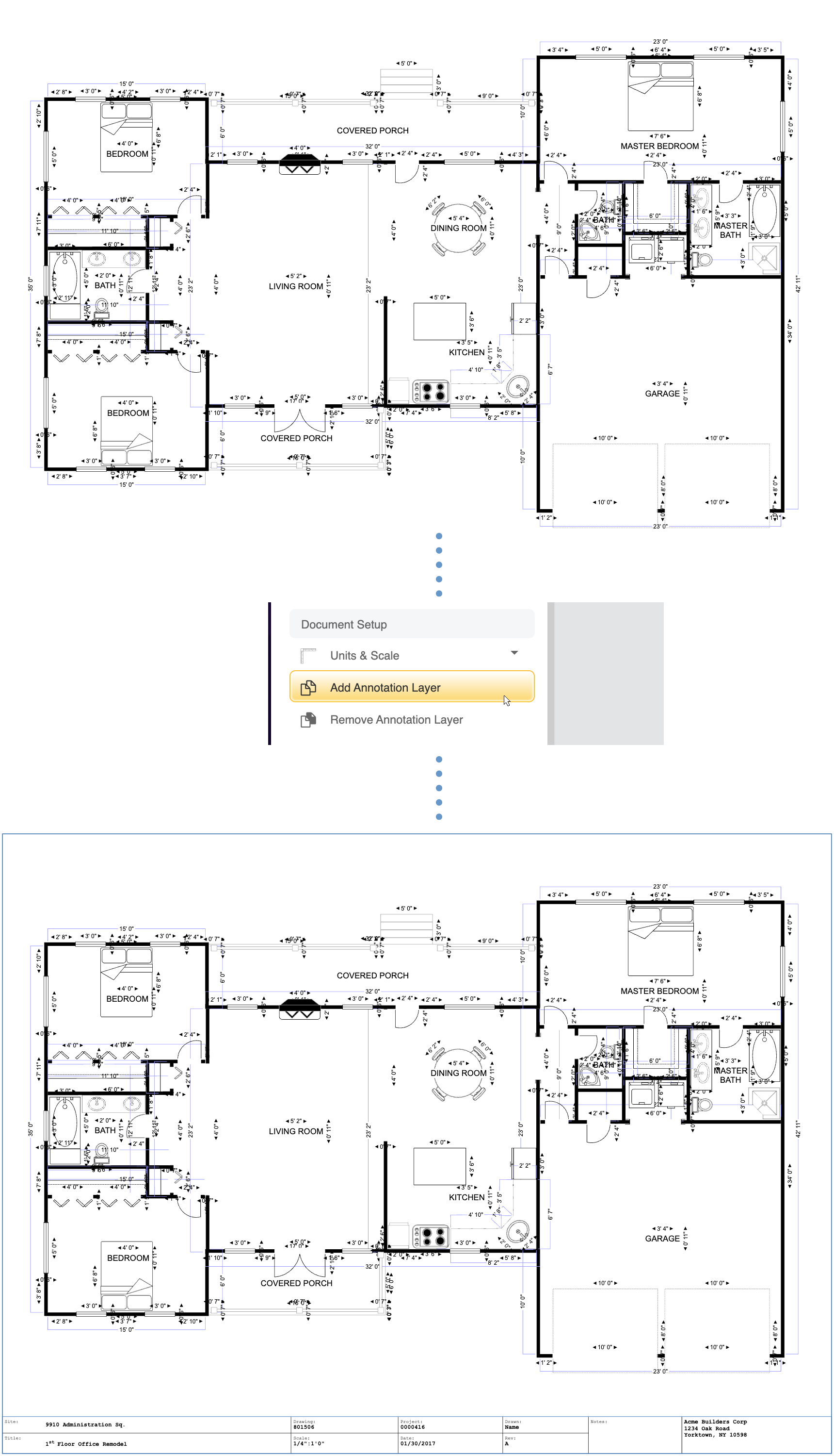
Before sharing most CAD diagrams, blueprints, or floor plans, you might need to add information to make the diagram easier to understand for others. This information may include the author or creator, the date of the last update, revision, scale, and other project information.

The tricky part of adding this information to a floor plan or CAD diagram is that these types of diagrams are all scaled drawings. You want your annotations to be visible without constant tedious manual placement and alignment, no matter what the scale of your drawing is.

SmartDraw makes it easy to add this information with just a click of a button. SmartDraw's annotation layer is a special kind of layer that contains information about the diagram and it is scale-independent. The annotation layer automatically adjusts its size and position as the drawing area (or paper size) changes.

Like a complex CAD program, SmartDraw's annotation layer is a powerful feature that lets you create professional CAD drawings easily. Learn how to add an annotation layer to a floor plan or CAD diagram.

SmartDraw CAD annotation layer